


195 900 ₽/м²
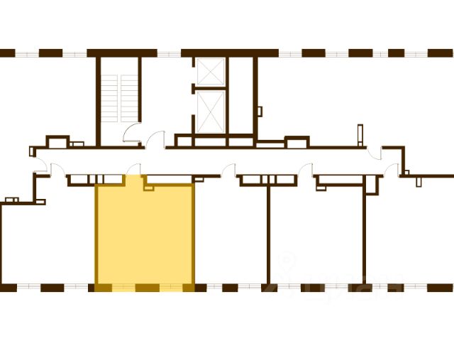
Продаётся 2-комн. квартира площадью 52,7 кв.м на 13 этаже 17 этажного дома (Корпус 6, Секция 1) проекта ПИК Уюн парк. Светлый просторный подъезд на уровне земли, функциональная планировка, большие окна, . Жилой квартал "Уюн парк" расположен в северной части Южно-Сахалинска, в районе Уюн, в 15 минутах на машине от центра города. Квартал окружают сопки и лес, это придаёт ему камерность, атмосферу спокойствия и уединения. В "Уюн парке" будет построен 41 жилой корпус. В наших домах просторные и светлые подъезды без ступеней и пандусов. На территории запланированы детский сад и школа, многоуровневые надземные паркинги. На первых этажах - магазины, кафе и полезные сервисы, а на подземных - индивидуальные кладовые. Дома жилого квартала живописным каскадом поднимутся вверх по сопке. Благодаря такой застройке, большим окнам и лоджиям в квартирах всегда будет много естественного света. Территория "Уюн парка" спроектирована по принципу "многоуровневого ландшафта": архитекторы учли все особенности рельефа, чтобы создать органичное пространство для жизни. Здесь появятся места для отдыха и прогулок, спортивные и детские площадки. Артикул 898129 (Застройщик ООО Специализированный застройщик ПИК-Сахалин) Купить 2-комнатную квартиру на 13 этаже в Южно-Сахалинске.
































































































































