477 572 ₽/м²
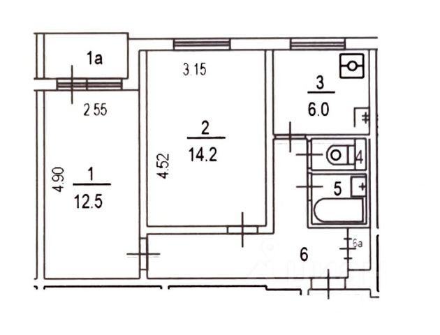
Строим кварталы для жизни с заботой о будущем. Предлагается квартира студия комфорт-класса 27,2 кв.м в корпусе 2 на 10 этаже, в ЖК "Квартал Румянцево" Квартира с предчистовой отделкой. Доступность дополнительных опций уточняйте у застройщика. Приобрести квартиру возможно по специальным акциям от застройщика, с текущими условиями акций можно ознакомиться в блоке "Акций". Цена динамическая и может отличаться, уточняйте актуальность у застройщика. "Квартал Румянцево" — современный проект в 2 км от МКАД, в экологически благоприятном районе Новой Москвы. Территория квартала утопает в зелени, а вся необходимая инфраструктура, включая учебно-воспитательный комплекс, — в шаговой доступности. Близость метро "Румянцево" и "Саларьево" делает проект отличным вариантом для тех, кому важно быстро добираться в любую точку города. До ближайших лесопарков — Тропаревского и Троицкого — можно прокатиться на велосипеде. Дорога займет всего 10 минут. Для детей построят учебно-воспитательный комплекс, в который войдут общеобразовательная школа, детский сад, а также кружки и секции. На первых этажах жилых домов откроются магазины и аптеки, пекарни и кафе. На территории жилого комплекса появится большой сад с многолетниками, аллеи для прогулок и зеленые прогулочные бульвары. А для велосипедистов спроектирована сеть велодорожек, по которым можно добраться до ближайших станций метро. Квартира на улице Окружная в городе Корсаков.
































































