Мы используем куки-файлы. Соглашение об использовании

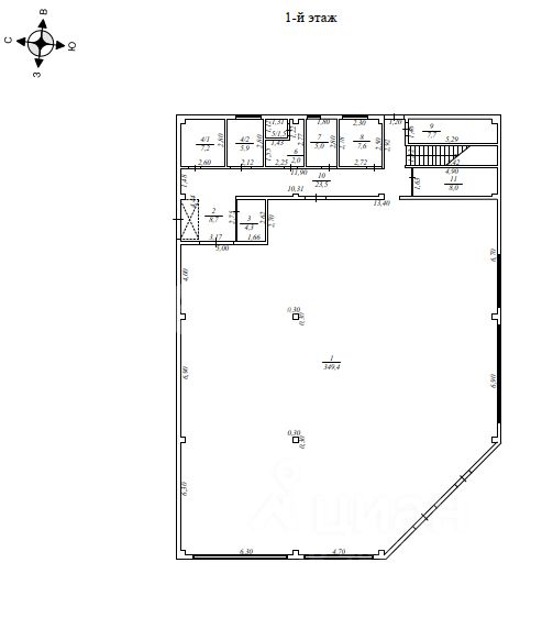
Продается торговая площадь, 583,3 м²

Площадь583,3 м²
Этаж1 из 1
ПомещениеСвободно
Помещение общей площадью 583 кв. м расположено в отдельном двухэтажном здании и обладает статусом свободного назначения, что открывает широкие возможности для размещения практически любого вида бизнеса. Ключевым преимуществом является свободная планировка и высокие потолки, позволяющие эффективно зонировать пространство под конкретные задачи. Объект полностью подготовлен для коммерческой эксплуатации: здесь проведены все необходимые инженерные коммуникации, включая центральное отопление, водоснабжение, электроснабжение, высокоскоростной интернет и телефонную связь. Установлены системы приточно-вытяжной вентиляции, кондиционирования и видеонаблюдения, также в наличии имеются встроенные холодильные камеры. Для обеспечения логистики предусмотрены отдельные входы и зоны разгрузки. Значительным плюсом является собственная открытая парковка на 25 автомобилей, что решает вопрос парковки для сотрудников и клиентов. Объект отличается отличной транспортной доступностью в районе с развитой инфраструктурой. В настоящее время помещение сдается в аренду, принося стабильный доход в размере 700 000 рублей ежемесячно. При этом рыночный потенциал арендной ставки оценивается экспертами в 1 000 000 рублей, что создает перспективу для роста доходности при смене арендатора или при самостоятельном использовании площадей. Данное предложение представляет собой готовое инвестиционное решение с текущим cash flow и потенциалом увеличения капитализации. Код пользователя: 8003 Номер в базе: 10640969
lock

Войдите или зарегистрируйтесь
для просмотра информации

Просматривайте условия сделки и всю информацию об объекте
Сохраняйте фильтры в поиске и не вводите заново
Доступ к избранному с любого устройства
Неограниченное добавление в избранное
Позвоните автору
Вам ответят на все вопросы
Остались вопросы по объявлению?
Позвоните владельцу объявления и уточните необходимую информацию.
  • Инфраструктура
  • Похожие рядом
  • Общая площадь583,3 м²
Помощь надёжных риелторов
Риелтор партнёр Циан поможет купить или продать любую недвижимость
83 000 000 ₽
1 103 216 $
935 419
Цена за метр
142 294 ₽
Налог
НДС не включен
Агентство недвижимости
Документы проверены
На Циан
6 лет
Объектов в работе
более 2000