Мы используем куки-файлы. Соглашение об использовании
С мебельюПроверено в Росреестре

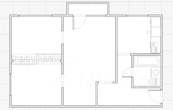
Продается 3-комн. квартира, 47 м²

Трешка по цене двушки в центре

Общая площадь47 м²
Жилая площадь30,7 м²
Площадь кухни6 м²
Этаж5 из 5
Год постройки1973
Продается уютная трехкомнатная квартира в одном из лучших для проживания мест Южно-Сахалинска - чистом и благоустроенном центре города. Квартира состоит из гостиной с местом под гардероб и выходом на балкон, а также двух отдельных комнат, позволяющих организовать приватное пространство для работы и отдыха. Оборудованная кухня и просторный совмещенный санузел с ванной создают дополнительное удобство для жизни. Вся мебель и техника, представленная на фото, остается новым собственникам. Благодаря высокому этажу и расположению окон на запад, в квартире всегда солнечно и тепло. Из окон открывается великолепный вид на просторный благоустроенный двор, который является одним из лучших в городе. Во дворе обустроены спортивные и игровые площадки для детей и взрослых, скамейки для отдыха. По периметру двора всегда найдется место для парковки автомобиля. В доме недавно произведен капитальный ремонт фасада и крыши, установлена система видеонаблюдения и современные металлические входные двери с кодовым замком и домофоном. В подъезде всегда чистота и порядок, на этаже находится три квартиры, соседи доброжелательные и отзывчивые. Центр наиболее приятное место для постоянного проживания в Южно-Сахалинска, так как он наиболее благоустроен, а также располагает всеми необходимыми удобствами городской инфраструктуры, которые расположены в шаговой доступности - это административные (Правительство, мэрия, областная Дума) и образовательные учреждения, в том числе университетский кампус международного уровня СахалинТех СахГУ, объекты культуры (киноконцертный зал, театры, музеи) и спорта (два бассейна), исторические здания с элементами японской архитектуры, а также магазины и торговые комплексы. Особую очарование центру города придают ухоженные зеленые пространства, в том числе любимое место отдыха горожан - городской парк культуры и отдыха им. Ю.А.Гагарина с живописным озером и обновленной набережной реки Рогатка, а также многочисленные зеленые скверы, которые подходят для ежедневных прогулок на свежем воздухе - ближайший к дому - сквер Асахикава. Квартира готова к продаже, в ней никто не прописан. В собственности более пяти лет - один взрослый собственник. Обременений нет. Быстрый выход на сделку. Полная сумма в договоре.
Позвоните автору
Вам ответят на все вопросы

О квартире

Тип жилья

Вторичка

Общая площадь

47 м²

Жилая площадь

30,7 м²

Площадь кухни

6 м²

Высота потолков

2,6 м

Санузел

1 совмещенный

Балкон/лоджия

1 балкон

Вид из окон

Во двор

Ремонт

Косметический

Продаётся с мебелью

Да

О доме

Год постройки

1973

Тип перекрытий

Железобетонные

Подъезды

6

Парковка

Наземная

Отопление

Центральное

Аварийность

Нет

Спросите умного помощника
Получите экспертное мнение о жилье
Информация из Росреестра
Обременения
Нет
Площадь
46,5 м²
Этаж
5
Собственников
1
Кадастровый номер
65:01:0702001:***

Расположение

Ипотечный калькулятор
  • Базовая
  • Семейная
  • ІТ-ипотека
  • 20.1%
  • 30%
  • 40%
  • 50%
лет
  • 10 лет
  • 20 лет
  • 30 лет
Загружаем предложения от застройщика и банков
СобственникID 129929009
    7 949 000 ₽
    Цена за метр
    169 128 ₽/м²
    Условия сделки
    свободная продажа
    Ипотека
    возможна
    СобственникID 129929009