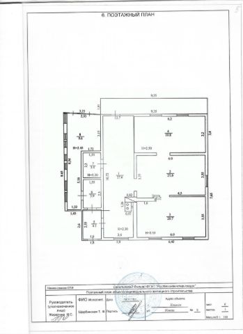
Двухэтажный дом для семьи из нескольких человек расположен в тихом районе города, сочетая преимущества урбанизированной среды и спокойствие загородной жизни. Участок удален от основных дорог, что обеспечивает низкий уровень шума и чистый воздух, при этом до центра города можно добраться за 10 минут как на автомобиле, так и пешком. Из окон открывается панорамный вид на южную часть города и море, а близлежащие холмы создают ощущение уединенности, не лишая доступа к городской инфраструктуре. Первый этаж включает просторную гостиную для вечеров около большого телевизора. Здесь же находиться полностью оборудованная кухня с современной техникой и качественной мебелью, спальня, санузел и котельной с автономной системой отопления. Второй этаж отведен под приватную зону: здесь расположены две изолированные спальни, компактный спортивный уголок и закрытая лоджия— идеальное место для отдыха с видом на ночное небо. Продуманная планировка и окна, выходящие на обе стороны дома, создают ощущение простора и наполняют помещения естественным светом. Район обладает развитой инфраструктурой: в близкой доступности находятся магазины, мореходное училище, школа и детский сад. Прогулочные тропы вблизи холмов позволяют совмещать активный отдых с городским комфортом. Дом используется для постоянного проживания: проведены все коммуникации, включая высокоскоростной интернет. Этот объект является практичным решением для тех, кто ценит баланс между динамикой города и тишиной частного пространства. Для Код пользователя: 180832 Номер в базе: 7832108
































































